AUGUSTA — For as much optimism as the supporters of the Colonial Theatre have in their plan to renovate and reopen in downtown Augusta by 2019, a lot of work remains.
Richard Parkhurst, who has spearheaded the project, has set a deadline and has a plan.
“The really great thing now is that no water got in this winter,” he said, standing in the theater on a frigid day earlier this month. “As soon as the weather breaks, we’ll start on the floor. The engineering is all done and the materials list is made. It all depends on the weather.”
Not all the work that’s pending is construction.
Prime among the work to be done is raising the money to do the estimated $8.5 million project. About $2.2 million of that is expected to come from state and federal historic preservation tax credits. Parkhurst said the theater group already has raised nearly $1 million, and there are potential large donors “waiting on the sidelines” who have indicated they’ll also make donations to the project.
The city of Augusta has committed itself to contributing $300,000 to the project, though the city won’t pay those funds, City Manager William Bridgeo said, until the project is substantially complete. That will avoid spending taxpayer money only to see the project fail, such as if too little money is raised from other sources, or if for any reason the work doesn’t take place.
He said the $300,000 could come from money essentially left over from the recent $11 million expansion and renovation of Lithgow Public Library. He said the library project came in under budget, which is why $300,000 is available.
Parkhurst said this month the goal is to have the theater ready to open in 27 months. He said that goal is ambitious but not crazy.
He said they plan, this month, to apply for a $500,000 grant, and also plan to seek other grant funding.
Sam Tippet, of Sidney, president of the Colonial Theatre board of directors, expressed confidence that area people, businesses and organizations will step up to donate the money needed to restore and reopen the theater.
“There is a groundswell of support. We’re seeing more and more,” he said.
Bill Williamson, grandson of William B. Williamson, who built the theater in 1912, and co-chairman of the fundraising campaign, said he hopes people from outside the Augusta community also will contribute, especially with Augusta being the state capital. He said it may take a few years to raise all that money, but the result will be worth it, with a rejuvenated theater that he believes will also rejuvenate the downtown, the city and the region.
“I think it’s just going to take commitment and focus to raise the money,” Williamson said. “But look to what Waterville has done, with the opera house, and Rockland, with The Strand. There are so many examples where these old theaters have been rebuilt and rehabilitated and been a home run for the community.”
Augusta Mayor David Rollins acknowledged fundraising efforts might have to overcome donor fatigue. That’s because the project comes on the heels of recent fundraising efforts that helped build a new MaineGeneral Medical Center, Kennebec Valley YMCA, Cony High School, and a Lithgow Public Library expansion. But he’s confident it’ll happen and people will come through for the theater, as they did for each of the projects.
“No doubt there is donor fatigue. That’s certainly understandable, but at the same time I hope we all pull together and make this happen,” Rollins said. “This town and community have done unbelievable things. The amount of money we raised the last 12 years, they said couldn’t be done. I think we’ll get there because it is something that has to happen.”
Rollins said a renovated theater would help improve that end of Water Street, which has a few other dilapidated buildings.
IMAGE AND PARKING
The theater is also a couple doors down from Bread of Life Ministries’ soup kitchen on Water Street, which provides numerous people in need with a free meal at lunchtime during the week.
At an Augusta Planning Board meeting in September regarding an unrelated proposal to clarify and modify city zoning rules, several downtown merchants and city residents complained about the effect that users of such social services have had on the city, especially the downtown area. They said people waiting to get into the soup kitchen on Water Street have deterred potential customers from coming to their businesses. Some of them said those same people could hurt efforts to draw theatergoers to the Colonial Theatre once it is renovated.
“We’re not against Bread of Life, but we’re also trying to revitalize the old Colonial Theatre, and having those two so close together, I think is going to be very difficult,” said Stacey Shaw, who owns the relatively new Black & Tan restaurant, on Bridge Street just above Water Street, with her husband, Chris, who is also a veteran city police officer. “There are a lot of people who need help. We’re not against those people. We’d just like the downtown to be able to flourish, and that’s hard to do right now.”
Tippet, a former board member of Bread of Life, said he doesn’t think the Water Street soup kitchen will be an impediment to the theater being a success. He noted that it serves lunch only for a couple of hours a day, and theater activities are generally in the evenings. He also said the organization works hard to provide a valuable service to people who shouldn’t be judged unfairly just because they’re going to a soup kitchen.
“I see Bread of Life as a good neighbor and a very important organization,” he said.

This photo taken last week shows the Colonial Theatre in Augusta, where supporters hope to expand the building into the vacant lot next door as part of an $8.5 million renovation and expansion.
John Richardson, executive director of Bread of Life Ministries, the nonprofit group that operates the soup kitchen, declined to comment, saying only that he was focused on the work of serving the poor by feeding the hungry and housing the homeless, which he said is the organization’s mission.
Parkhurst said he is “not at all” concerned about the soup kitchen’s presence near the theater.
Tom Johnson, who owned and ran Capitol Computers between the theater and Bread of Life for 32 years before selling the business last year, said he doesn’t think the presence of the soup kitchen will be a problem for the theater.
“I was next to the soup kitchen and it hasn’t always been great, but we’ve managed to co-exist quite well,” he said. “The people running it seem to have sensitivity to the problem and do what they can. They’ve been there 27 years, I was there for 32 years. If I can survive next to it as a business, I don’t see why a theater couldn’t.”
Rollins said a group of local officials, residents and church leaders have been meeting regularly to ponder where social services might best be provided in the city. He said Bread of Life officials have declined to participate, but he’s hopeful they’ll come to the table and join that discussion.
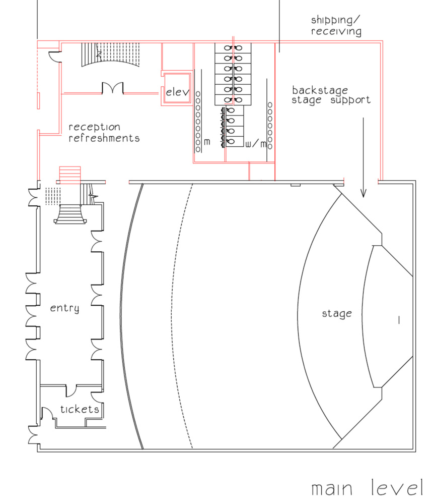
If the theater is restored, is reopened and becomes successful, Parkhurst said, it may have a problem that, as problems go, would be a good problem to have — parking, or the lack thereof.
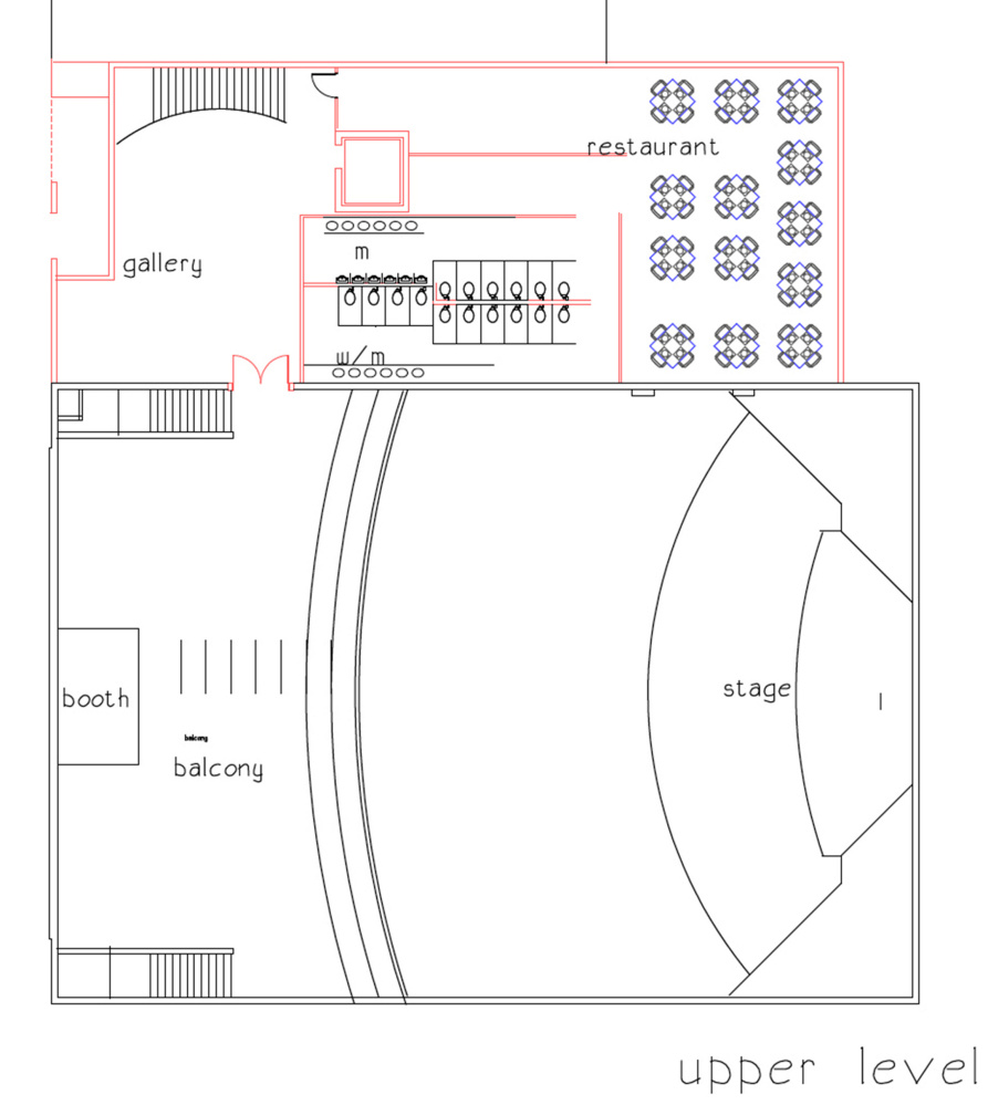
With about 800 seats planned, and no parking lot for the theater to call its own, a full house could leave some attendees searching for a place to park their cars.
Parkhurst noted there are city parking lots, such as one in nearby Mill Park; a parking garage just above Water Street; on-street parking; and other parking lots not far away that have spaces available at night. He’s hopeful the theater can work out an arrangement for parking spaces with the city. He also said shuttle buses from lots farther away could be a good option.
Tippet, Rollins and Parkhurst noted that attending events in other cities, such as Portland or Boston, often involves parking some distance away from the venue and walking a bit.
LOOKING AHEAD
Supporters of the theater project have more than two years to work through these issues and others they may still encounter.
What’s still taking shape is the theater’s business plan.
“I don’t have any intention of running this thing, but I have some goals,” Parkhurst said. “I believe this building belongs to the community and I want it to be accessible.”
If a local band needs a place to rehearse, Parkhurst would like that to happen at the Colonial, and that’s just one example.
A youth theater troupe already has been formed and is expected to schedule performances for the space. The troupe, led by Barbara Helen Baker, an actress, director and theater teacher, plans to stage its first production well before the Colonial restoration will be complete. The musical is expected to be performed at various locations, including schools, in the area. Parkhurst and Baker said the idea is to have the troupe up and running so when the theater is open, programming can begin immediately.
The Colonial also is expected to host live performances by touring acts.
From his time working as the director of marketing and development for the Waterville Opera House for two and a half years, Dick Dyer is convinced demand for live entertainment exists in this region that is not being met.
“We tripled our programming from pent-up demand, and many of those people would travel a half-hour or more to attend shows,” he said.
Dyer is now a partner in Community Productions, through which he brings performers to the area.
“One of the elements that’s missing is a theater in the 800-to-1,200 seat size,” he said. “There’s only one venue in that size range in central Maine, and it’s the Waterville Opera House. The Skowhegan Opera House is not fully renovated, and beyond that, you have the (Augusta) Civic Center, and that takes you to a different level.”
The Augusta Civic Center, where Elvis Presley, the Grateful Dead and Pearl Jam have played, finds itself booking events such as banquets, trade shows, graduations and sports entertainment more often than touring musical acts.
“We still get calls for shows,” Civic Center Director Earl Kingsbury said, “but my simple answer is we’re too busy.”
Dates for annual events are booked well in advance, and that limits opportunities.
“If I looked now for a date in October 2018, I could give maybe one date,” he said.
Kingsbury said he doesn’t consider the Colonial competition for a couple of reasons. The Colonial will have a permanent stage, which makes booking theatrical productions there more feasible than at the Civic Center, where the staff would have to build a stage and a proscenium arch and rig up a curtain.
They are in different size classes; the Civic Center can accommodate an audience more than twice the size of the Colonial, and its size puts it in competition with the Bangor Waterfront concert facility, where many tours have scheduled stops since it opened in 2011.
“I think (the Colonial) will be great for the city and great for downtown. It’s something the city needs,” he said.
Dyer, who is working on booking shows for well into 2018, said he’s interested in what the Colonial Theatre will be doing.
‘WHOLE NEW GROUP OF PEOPLE’
That falls in part on the shoulders of Matthew Whitman.
“If I have my way, there will be a show at the Colonial on the grand opening day,” Whitman said. Through his company, JFW Productions, he works in artist management and production. For the Colonial, he’s working through the business plan.
Supporters have built into their fundraising plan $1.3 million for operating expenses for the first two years, but that funding doesn’t replace a business plan.
“There’s an awful lot of demographic research that goes into a plan like this,” he said, as well as hypothetical spreadsheets to determine what will be needed to keep the lights on and doors open.
“We’re trying to make decisions very deliberately,” he said. “This is a 501(c)(3) (non-profit), and where the money goes is very important. Everyone involved wants it to be very community-oriented.”
Whitman met Parkhurst via an introduction through the Snow Pond Arts Academy, which Whitman’s son attends. Whitman also is consulting with the Snow Pond Center for the Arts on its own renovation project.
“One of my favorite things in the world is taking what I have learned in my job and use it to help the community and help the kids,” he said. “After meeting with Richard, I think this is really going to work. It’s going to work well, and Richard has been taking the appropriate steps to do it right.”
The ongoing discussions are about striking the right balance of performances and finding the right operating model.
Parkhurst said theaters rely on donations and endowments to supplement revenue because theaters don’t make money.
But that’s not going to stop him and his team from completing the Colonial’s renovation, and neither will predictions of doom that can attach themselves to complicated and costly projects.
“We can spend our time trying to convince the naysayers,” Parkhurst said, “or we can convince a whole new group of people.”
Keith Edwards — 621-5647
kedwards@centralmaine.com
Twitter: @kedwardskj
Jessica Lowell — 621-5632
jlowell@centralmaine.com
Twitter: @JLowellKJ
Send questions/comments to the editors.
